|
|
Descriptions:
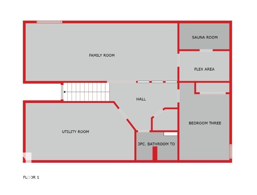
Outstanding! Majorly renovated and upgraded bungalow in a very desirable location. Some of the notable features include the open beam vaulted ceilings throughout the main floor, the huge chef's kitchen with antique finish shaker maple cabinets, dark granite counters and walk in pantry, quality hand scraped engineered hardwood and slate tile flooring. The large living room with gas fireplace, 2 bedrooms, 2 full bathrooms, an amazing den with a library plus the laundry room complete the main level. The primary bdrm has a walk in closet and a spa like ensuite bathroom with walk in shower. The finished basement has spacious family room with wet bar, a 3rd bedroom, 3 pc bathroom and dry sauna. Double detached garage plus a separate heated workshop. The back yard is quite private, is fully landscaped with mature trees and perennials and there is a welcoming composite deck across the back of the home. Fantastic property, rare opportunity in Brookside!
|
|
|
|
|
|
|
|
| Site Influences: |
| Back Lane, Fenced, Private Setting, Schools |
|
| Legal Description: |
| ACCESS Legal Description |
|
| Location & Listing Info: |
|
|
| Lot Shape: |
Rectangular |
|
|
|
|
|
| Property Info: |
|
| Property Type: |
Detached Single Family |
| Home Style: |
Bungalow |
| Year Built: |
1972 |
| Total Floor Area: |
1,831 sq. ft. |
| Front Exposure: |
East
|
|
|
|
|
|
| Exterior: |
|
| Exterior: |
Back Lane, Fenced, Private Setting, Schools |
| Frontage: |
16.5 |
| Front Exposure: |
East |
| Roof: |
Asphalt Shingles |
|
|
|
|
|
|
|
|
|
|
| Rooms: |
|
| Total Bedrooms: |
3
(Bedrooms Above: 2)
|
| Bathrooms: |
Full: 3
/ Half: 0
|
| Rooms Above: |
5 |
|
|
|
|
|
| Additional Info: |
|
| Heating: |
Y |
| Basement: |
Full, Finished |
| Basement Type: |
Full, Finished |
| Floor Finish: |
Engineered Wood, Hardwood, Slate |
| Parking: |
Double Garage Detached, Heated, Shop |
|
|
|
|
|
|
|
|
|
|
|
|
|
|
|
 |
Contact Gil Whyte -
14717-40 Ave. NW, Edmonton, Alberta, T6R 1N1
|
|
|
|
|
|
|
|
|
|
Copyright 2025 by the REALTORS® Association of Edmonton. All Rights Reserved. Data is deemed reliable but is not guaranteed accurate by the REALTORS® Association of Edmonton. Data was last updated December 23, 2025, 10:28 pm. |
|
|
|
|
The data included on this website is deemed to be reliable, but is not guaranteed to be accurate by the REALTORS® Association of Edmonton.
MLS®, Multiple Listing Service®, and the associated logos are all registered certification marks owned by CREA and are used to identify real estate services provided by brokers and salespersons who are members of CREA. The trademarks REALTOR®, REALTORS® and the REALTOR® logo are controlled by The Canadian Real Estate Association (CREA) and identify real estate professionals who are members of CREA. Used under license.
|